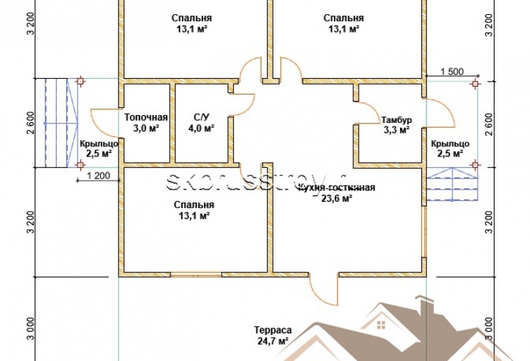
Размер
9x12
Кол-во комнат
3
Кол-во санузлов
1
Площадь
100м2
Этажность
1 этаж
Срок строительсва
10 дней
от 1 284 000₽
от 1 427 000₽
Ваша выгода 143000 рублей.
*Цена с доставкой и сборкой. Под усадку, без отделки, без окон и дверей, согласно комплектации.
Обрезной брус 150х150мм
Толщина стены 150мм
Обрезной брус 150х200мм
Толщина стены 200мм
Профилированный брус 145х145мм
Толщина стены 145мм
Профилированный брус 145х195мм
Толщина стены 195мм
Дополнения к проекту
Фундамент
Свайно-винтовой
Диаметр 108мм, длинна 2.5м, толщина стенки 4мм, оголовок 200х200мм
139000₽
ЖБ Сваи
Сечение 150х150мм, длина 3 метра, оголовок 200х200мм
178000₽
Ленточный мелкозаглубленный
Ширина ленты 30см, глубина 50см, высота 50см
348000₽
Кровля
Ондулин
Цвет по выбору
157000₽
Металлочерепица
Гранд Лайн 0.45мм. Цвет по выбору
218000₽
Стеновой комплект дома
Все расходные материалы
Деревянные нагеля (шканты), льноволокно (джут), гвозди, гидроизоляция фундамента, рубероид.
Внимание
Примечание к домокомплекту: строительство деревянных домов и бань из материала естественной влажности ведется в два этапа:
1 этап-Сборка домокомплекта под усадку
2 этап-(после усадки дома или бани 6-9 месяцев),
Отделочные работы-Окна, двери, чистовые полы и лестница не входят в стоимость и монтируются после усадки дома.
Cтоимость отделочных работ рассчитывается отдельно исходя из пожеланий заказчика. Все работы по отделки производятся только после усадки дома.
Фундамент (рассчитывается отдельно)
Как мы строим
Обвязочный/двойной обвязочный ряд из бруса в подарок!
Половые лаги
брус 100х150мм с шагом 59см (*возможно изменение по желанию заказчика)
Стены
обрезной или профилированный брус 150х150/150х200мм , 145х145/145х195мм
Внутренние перегородки
обрезной или профилированный брус 150х100мм, 145х95мм (*возможно изменение по желанию заказчика)
Сборка
на деревянные нагели, межвенцовый утеплитель - джут
Соединение бруса
«ласточкин хвост» (теплый угол)
Оконные и дверные проемы
оформление проема с перемычкой на время усадки
Стропильная система
доска 50х150мм с шагом 59см
Фронтоны
имитация бруса или брус, в зависимости от проекта
Гидроизоляция + контробрешетка
под монтаж чистовой кровли с вент зазором
Металлочерепица Гранд Лайн 0.45мм
монтаж чистовой кровли. (*возможно изменение по желанию заказчика)
рынке
домов

Этапы работ
Оформление заявки
Вы оставляете заявку на нашем сайте или по телефону +7 (910) 372-94-52
Подготовка предложения
Высылаем вам коммерческое предложение и проект договора
Утверждаем проект и договор
Вносим изменения в проект и договор*
Выезд на объект и подписание
Определяем дату встречи у Вас на участке и подписываем договор
Монтаж фундамента
В оговоренные сроки монтируем фундамент на Вашем участке
Подготовка материала
Готовим пиломатериал для вашего дома в течении 10 дней
Доставка материала и начало строительства
В назначенный день приезжает бригада строителей и завозим материал
Сдача объекта
Подписание акта приема-передачи и сдача объекта Заказчику
Наши последние работы
5
домов построено
за последний
месяц
210+
построено за
все время
работы
Похожие работы
Мы строим по всей России! Работаем круглый год!
- Москва
- СПб
- Коломна
- Щелково
- Пестово
- Химки
- Рыбинск
- Чехов
- Чухлома
- Балашиха
- Вязьма
- Ясногорск
- Ржев
- Устюжна
- Солигалич
- Домодедово
- Долгопрудный
- Подольск
- Реутов
- Кострома
- Мытищи
- Старая Русса
- Видное
- Электросталь
- Королев
- Люберцы
- Ярославль
- Сергеев Посад
- Конаково
- Кимры
- Торжок
- Истра
- Касимов
- Галич
- Ковров
- Серпухов
- Углич
- Тула
- Бежецк
- Рыбинск
- Нижний Новгород
- Вышний Волочёк






